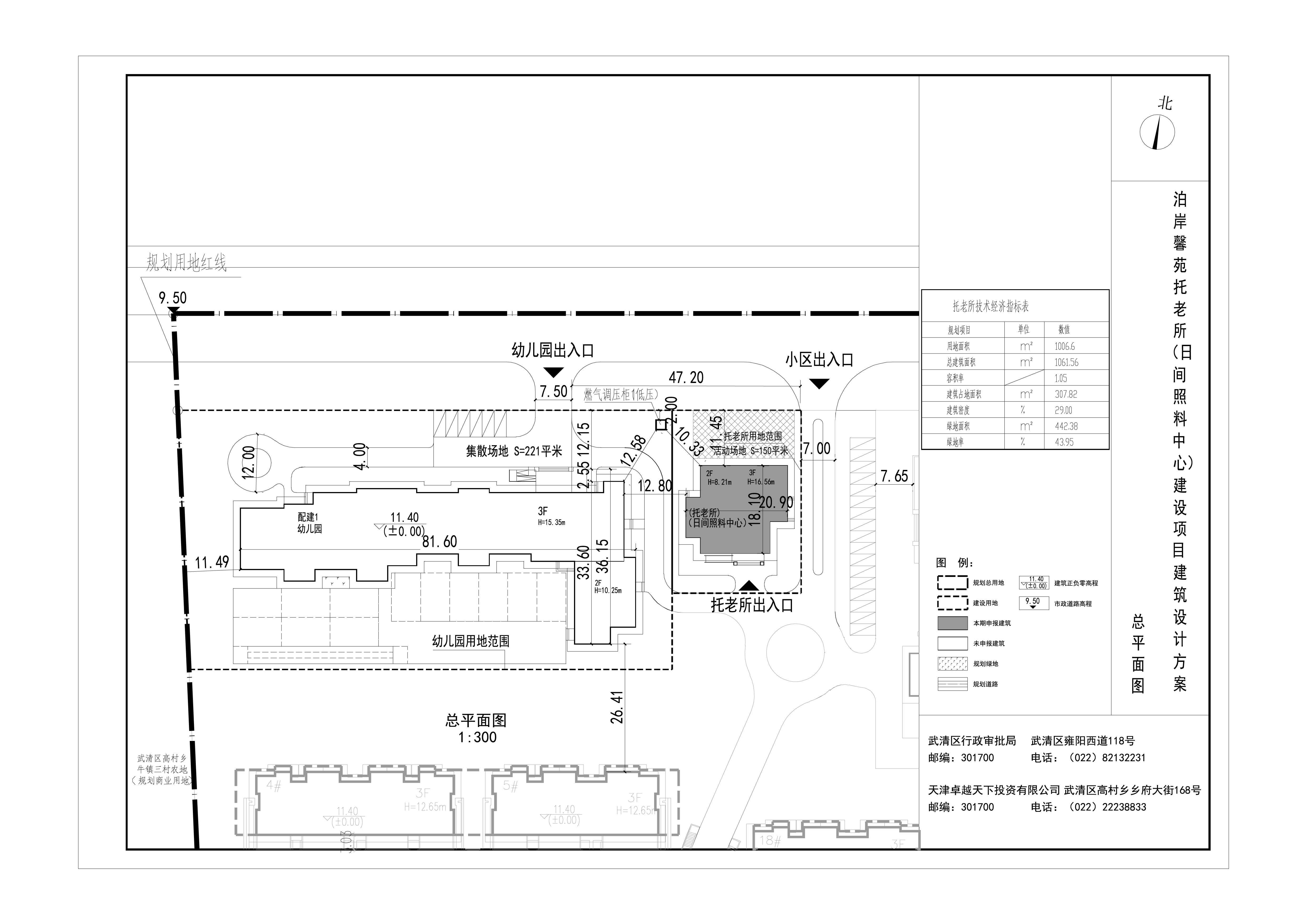
天津卓越天下投资有限公司开发的位于武清区高村镇高信道南侧的泊岸馨苑托老所(日间照料中心)于2018年3月12日取得建筑设计方案的批复,编号为:2018武清建案申字0023,现需进行建筑设计方案公布。
天津市武清区行政审批局按照住房城乡建设部印发的《关于城乡规划公开公示的规定》以及相关规定要求,公布建设项目泊岸馨苑托老所(日间照料中心)建筑设计方案。公示期限自信息发布起7个工作日。
公示期间,公众可以通过发送电子邮件、信函、电话反馈的方式提出意见。
电话:82132231
电子邮箱;czghkgongshi@126.com
地址:武清区雍阳西道118号
请在信封上注明:对天津卓越天下投资有限公司泊岸馨苑托老所(日间照料中心)建筑设计方案公布的意见。
注1:上述相关资料由外界所提供、并以行政许可申请人所提交的形式进行公开。上述资料和信息中如有错漏,使用上述信息和资料作为依据者自行承担责任。
建筑设计方案公布:

武清区行政审批局
2018年3月12日





津公网安备12010102000518号