规划公布
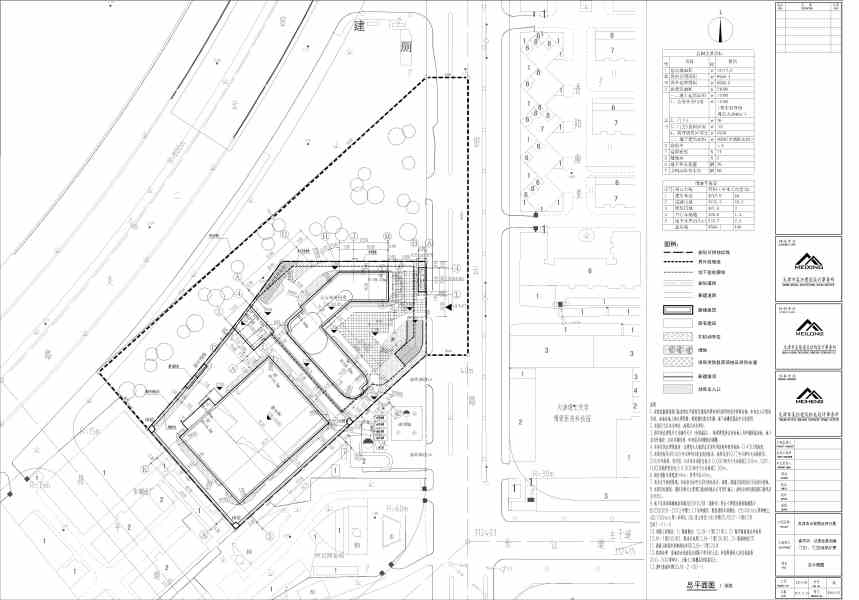
天津市公安局南开分局看守所及业务用房项目的建设工程设计方案已于2016年2月25日经天津市规划局南开区规划分局审定,依据《城乡规划法》的有关规定,现将方案总平面图予以公布。

附件下载:
国务院相关部委
政府机关
局属单位网站
主办单位:天津市规划和自然资源局 地址:天津市和平区曲阜道84号 邮编:300042
网站标识码:1200000077 备案编号:津ICP备19001981号
津公网安备12010102000518号
版权所有:天津市规划和自然资源局